前へ
次へ
前へ
次へ
一戸建

Brahms(ブラームス)(Osten)

35 万円
共益費 -
70万円
35万円
間取り
2SLDK
専有面積
93.57㎡
所在階
1階建ての1階
向き
  • アイコン: 住所 静岡県御殿場市二の岡1丁目
  • アイコン: 交通 JR御殿場線 「御殿場駅」 徒歩27分 / JR御殿場線 「南御殿場駅」 徒歩37分 / JR御殿場線 「富士岡駅」 徒歩62分
簡単無料
アイコン: お電話 0037-6001-00981
IP電話ご利用のお客様 : 0545-32-9020
ピタットハウス
富士中央店
point!
邸宅品質×蔵のある家。戸建て賃貸の常識を超える、至高の空間。
天井高3.3mの大空間を叶える、極上のリビング。窓の向こうには季節ごとに表情を変える街路樹の景色。料理を愉しむためのⅡ型プレミアムキッチン。大切な家族のためのペット対応フロアも完備。
お気軽にお問い合わせください!
簡単無料
お気軽にお問い合わせください!
物件情報・周辺環境・契約手続きについてなどお気軽にお問い合わせください。

設備・条件

建物・立地
  • 宅配ボックス
  • 専用庭
  • 敷地内駐車場
  • プロパンガス
  • 駐車3台可
部屋設備
  • 室内洗濯機置場
  • 下駄箱
  • 収納スペース
  • 照明器具
冷暖房
  • エアコン
  • シーリングファン
キッチン
  • システムキッチン
  • ガスコンロ(3口)
  • Ⅱ型キッチン
バス・トイレ
  • バス・トイレ別
  • 浴室乾燥機
  • 追い焚き風呂
  • 独立洗面台
  • 温水洗浄便座
  • シャワー
  • タンクレストイレ
  • 浴室1坪以上
特徴
  • 新築
  • ペット相談可
  • 家賃deポイント対象物件

物件概要

物件種別

部屋種別 一戸建
建物名称 Brahms(ブラームス)(Osten)
所在地 静岡県御殿場市二の岡1丁目 MAP
築年月 2026年4月 階数 1階建ての1階
建物構造 木造 総戸数 2戸
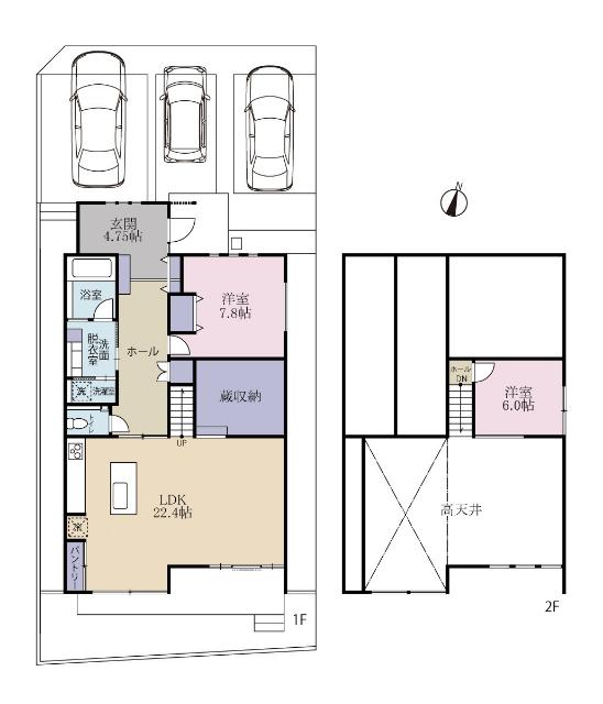
間取り 2SLDK(洋7.8帖 洋6帖 LDK22.4帖 S6帖) 専有面積 93.57㎡
向き バルコニー面積 -
その他 -

費用

賃料 35万円 初期費用の確認をする 初期費用の確認をする 共益費 -
礼金 35万円 敷金 70万円
保証金 - 償却金 35.0万円(解約時)
その他一時金 -
その他月額費用 24時間サポート費:350円/月
住宅保険 要加入
保証会社 必須/ジェイリース
保証会社補足 初回保証料:家賃総額30% 更新料:10,000円/年
更新料 - 更新事務手数料 22,000円

契約条件

貸家契約区分 普通賃貸借 契約期間 2年
入居可能日 2026年5月10日予定 空室状況を確認をする 空室状況を確認をする 引渡時期相談内容 -
フリーレント -
クレジットカード決済 -

駐車場

駐車場 有り(無料) 駐車場について質問する 駐車場について質問する
駐車場契約形態 -
駐車場備考 3台可
バイク置き場 -
駐輪場 -

備考

その他 蔵床面積:8.69㎡(2.63坪)
関連リンク
取引態様 媒介 管理コード 4757436
情報登録(更新)日 2026年1月19日 次回更新予定日 2026年3月17日
備考 めやす賃料:

めやす賃料とは賃料、共益費・管理費、敷引金、更新料を含み、賃料等条件の改定がないものと仮定して4年間賃借した場合(定期借家の場合は契約期間)の1ヶ月当たりの金額です。

※敷引金は、敷金の償却、保証金の償却など、預かった金額から必ず引くものをいいます。
※めやす賃料は、消費者に適切な情報を提供するための表示であり事業者に一時金を推奨するものではありません。
※めやす賃料は、実際の総支払額と異なる場合があります。詳しくは不動産会社にご確認ください。  

周辺環境

  • 御殿場市立御殿場南小学校:1908m
    御殿場市立御殿場南小学校:1908m
  • 御殿場市立南中学校:1838m
    御殿場市立南中学校:1838m
コンビニ
ファミリーマート御殿場二の岡店
499m
買物
マックスバリュ御殿場新橋店
1018m
ドラッグストア
マツモトキヨシ御殿場新橋店
967m
ホームセンター
ノジマ御殿場店
1035m
病院
社団法人有隣厚生会富士病院
1768m
役所
御殿場市役所
2796m
郵便局
御殿場東田中郵便局
1633m
図書館
御殿場市立図書館
2856m
交番
御殿場警察署
3999m
公園
平和公園
1594m
銀行
静岡銀行御殿場東支店
1310m
幼稚園
御殿場聖マリア幼稚園
1644m
小学校
御殿場市立御殿場南小学校
1908m
中学校
御殿場市立南中学校
1838m
高校
静岡県立御殿場南高校
1505m

取扱店舗

ピタットハウス富士中央店
ピタットハウス富士中央店
ラウンズコミュニケーション株式会社
交通
岳南電車「吉原本町」駅 徒歩25分
営業時間
09:00 〜 18:00
定休日
毎週水曜日・GW・夏季・年末年始休業・12/29(月)から1/4(日)
  • 駐車場あり/キッズスペースあり
お電話 0037-6001-00981 無料
メール お問い合わせ
  • お問い合わせ区分

  • 内見希望日時

    第一希望

    第二希望

  • お名前

    全角
  • ご希望の連絡方法

    メールアドレス

    電話番号

    半角
    半角
  • その他ご希望等

ピタットハウスの個人情報の取り扱いについて

ピタットハウスでは信頼されるサイトを目指して、物件情報の精度向上に努めています。
掲載物件に誤りがある場合は こちら からご連絡ください。現状と異なる場合は、現状を優先させていただきます。
取引態様の欄に「媒介」と表示された物件は「仲介物件」です。ご成約の際には仲介手数料を申し受けます。

生活情報

御殿場市の暮らしデータ

御殿場市は、富士山と箱根という日本でも有数の名勝の間に位置する緑豊かな自然環境に恵まれた高原都市です。この快適な環境と、首都圏から約80km圏内という好立地条件を背景に順調な発展を続けています。交通の要衝としてのアクセスの良さから、産業面では企業進出が進んでおり、観光面でも年間1,400万人を超える観光客が訪れています。第四次御殿場市総合計画の将来都市像の実現に向けて、市民の声や思いを大切にし、市民一人ひとりが潤いと創造の喜びを実感できるよう、市民との協働によるまちづくりに取り組んで参ります。御殿場の地名は徳川家康公が駿府から江戸に通行する際の宿泊所として「御殿」を造ったことに由来します。

基本データ

市区役所所在地 御殿場市萩原483
公式ホームページURL https://www.city.gotemba.lg.jp/
総人口 86,614人
人口増減率(2015年/2020年) 98.3%
御殿場市の生活情報を詳しくみる

御殿場市の近隣エリアから探す

FAQ

  • A. Brahms(ブラームス)(ZH4757436_1)の内見は、見学予約でお問い合わせいただくか、直接富士中央店(0037-6001-00981)までご連絡ください。
  • A. 可能です。Brahms(ブラームス)(ZH4757436_1)周辺の情報は、ピタットハウスの地域情報ブログ「街ピタ」住みたい街の暮らしデータをご活用ください。
  • A. Brahms(ブラームス)(ZH4757436_1)の費用は、こちらよりお問い合わせいただくか、直接富士中央店(0037-6001-00981)までご連絡ください。
  • A. はい、可能です。賃貸希望物件リクエストをご利用ください。Brahms(ブラームス)(ZH4757436_1)に似た物件も合わせてご紹介させていただきます。