前へ
次へ
前へ
次へ
マンション
即入居可

オーキッドレジデンス六本木(1003)

31 万円
共益費 15,000
31万円
-
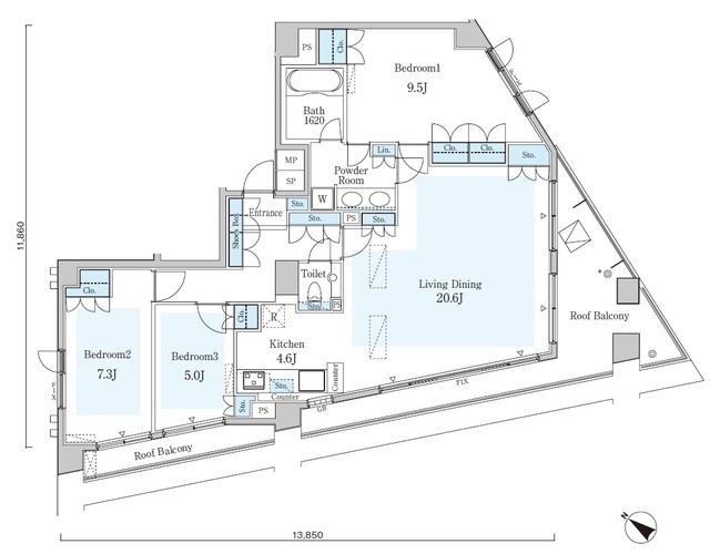
間取り
1LDK
専有面積
50.88㎡
所在階
14階建ての10階
向き
南東
  • アイコン: 住所 東京都港区六本木3丁目
  • アイコン: 交通 東京メトロ日比谷線 「六本木駅」 徒歩3分 / 都営大江戸線 「六本木駅」 徒歩3分
簡単無料
アイコン: お電話 0037-6001-06881
IP電話ご利用のお客様 : 03-3381-7770
ピタットハウス
中野南口店
お気軽にお問い合わせください!
簡単無料
お気軽にお問い合わせください!
物件情報・周辺環境・契約手続きについてなどお気軽にお問い合わせください。

設備・条件

建物・立地
  • エレベータ
  • 宅配ボックス
  • 敷地内ごみ置き場
  • 常時ゴミ出し可能
通信
  • CATV
  • BSアンテナ
セキュリティ
  • オートロック
部屋設備
  • フローリング
  • バルコニー
  • 室内洗濯機置場
冷暖房
  • エアコン
  • 床暖房
キッチン
  • システムキッチン
  • グリル
バス・トイレ
  • バス・トイレ別
  • 浴室乾燥機
  • 独立洗面台
特徴
  • 事務所利用不可

物件概要

物件種別

部屋種別 マンション
建物名称 オーキッドレジデンス六本木(1003)
所在地 東京都港区六本木3丁目 MAP
築年月 2002年8月 階数 14階建ての10階
建物構造 鉄骨鉄筋コンクリート造 総戸数 -
間取り 1LDK 専有面積 50.88㎡
向き 南東 バルコニー面積 4.00㎡
その他 管理形態:日勤管理 

費用

賃料 31万円 初期費用の確認をする 初期費用の確認をする 共益費 15,000円
礼金 - 敷金 31万円
保証金 - 償却金 -
その他一時金 室内清掃費:78355円 / 鍵交換費:22000円
その他月額費用 口座振替事務手数料:220円/月
住宅保険 要加入
保証会社 必須
保証会社補足 初回保証委託料(最低15,000円):月額賃料等の50%、 2年目以降:10,000円/年
更新料 - 更新事務手数料 -

契約条件

貸家契約区分 定期賃貸借 契約期間 2年
入居可能日 相談 空室状況を確認をする 空室状況を確認をする 引渡時期相談内容 -
フリーレント -
クレジットカード決済 -

駐車場

駐車場 なし 駐車場について質問する 駐車場について質問する
駐車場契約形態 -
駐車場備考 -
バイク置き場 -
駐輪場 -

備考

その他
関連リンク
取引態様 媒介 管理コード 3667111
情報登録(更新)日 2026年2月26日 次回更新予定日 2026年3月6日
備考 めやす賃料:

めやす賃料とは賃料、共益費・管理費、敷引金、更新料を含み、賃料等条件の改定がないものと仮定して4年間賃借した場合(定期借家の場合は契約期間)の1ヶ月当たりの金額です。

※敷引金は、敷金の償却、保証金の償却など、預かった金額から必ず引くものをいいます。
※めやす賃料は、消費者に適切な情報を提供するための表示であり事業者に一時金を推奨するものではありません。
※めやす賃料は、実際の総支払額と異なる場合があります。詳しくは不動産会社にご確認ください。  

取扱店舗

ピタットハウス中野南口店
ピタットハウス中野南口店
株式会社松崎ハウジング
交通
JR中央線・東京メトロ東西線中野駅南口より徒歩1分
営業時間
10:00 〜 18:00
定休日
毎週水曜日
お電話 0037-6001-06881 無料
メール お問い合わせ
  • お問い合わせ区分

  • 内見希望日時

    第一希望

    第二希望

  • お名前

    全角
  • ご希望の連絡方法

    メールアドレス

    電話番号

    半角
    半角
  • その他ご希望等

ピタットハウスの個人情報の取り扱いについて

ピタットハウスでは信頼されるサイトを目指して、物件情報の精度向上に努めています。
掲載物件に誤りがある場合は こちら からご連絡ください。現状と異なる場合は、現状を優先させていただきます。
取引態様の欄に「媒介」と表示された物件は「仲介物件」です。ご成約の際には仲介手数料を申し受けます。

その他の取扱店舗

不動産会社毎に募集条件等が異なる場合があります。詳細は各店の物件詳細ページにてご確認ください。
交通
JR山手線「新宿」駅徒歩6分都営大江戸線「新宿西口」駅徒歩2分
営業時間
09:30 〜 18:30
定休日
毎週水曜日・2月・3月は無休、夏季休暇無し
お電話 0037-6001-05237 無料
交通
つくばエクスプレス浅草駅A2出口を出まして左隣のビルの1階に店舗ございます。
営業時間
10:00 〜 18:00
定休日
毎週水曜日・日曜日・冬季休業・12/27から1/4
  • 近隣駐車場あり
お電話 0037-6001-04127 無料
交通
京急本線平和島駅より徒歩2分。改札を出て左側、第一京浜沿いを150mほど品川方面へお進みください。1階に当店がございます。
営業時間
10:00 〜 18:00
定休日
水曜日(月末、祝日を除く)
お電話 0037-6001-07302 無料
交通
南北線「白金台」駅徒歩2分。白金台駅1番出口から地上に上がり、そのまま大通りを左に歩いてドンキホーテを越えてキャンドゥの隣です。
営業時間
10:00 〜 18:00
定休日
毎週水曜日・第4火曜日
お電話 0037-6001-02519 無料
交通
JR中央線 『武蔵境駅』 南口より 徒歩30秒 駐車場有 
営業時間
10:00 〜 19:00
定休日
毎週水曜日・冬期休業・12/28から1/4まで
  • 近隣駐車場あり/キッズスペースあり
お電話 0037-6001-08163 無料

生活情報

港区の暮らしデータ

港区は、1947年3月15日に旧芝、麻布、赤坂の3区が統合され誕生しました。東京都のほぼ南東部に位置し、北西一帯の高台地と、南東の東京湾に面した低地および芝浦海浜の埋め立て地からなっています。高台地は秩父山麓に端を発している武蔵野台地の末端で、これらの台地は小さな突起状の丘陵となっているため、東京23区の中で最も起伏に富んだ地形をもっています。

基本データ

市区役所所在地 港区芝公園1-5-25
公式ホームページURL https://www.city.minato.tokyo.jp/
総人口 260,486人
人口増減率(2015年/2020年) 107.1%
港区の生活情報を詳しくみる

地域のおすすめ情報ブログ

一覧を見る

六本木駅近隣の駅から探す

港区の近隣エリアから探す

FAQ

  • A. オーキッドレジデンス六本木(ZZ3667111_453)の内見は、見学予約でお問い合わせいただくか、直接中野南口店(0037-6001-06881)までご連絡ください。
  • A. 可能です。オーキッドレジデンス六本木(ZZ3667111_453)周辺の情報は、ピタットハウスの地域情報ブログ「街ピタ」住みたい街の暮らしデータをご活用ください。
  • A. オーキッドレジデンス六本木(ZZ3667111_453)の費用は、こちらよりお問い合わせいただくか、直接中野南口店(0037-6001-06881)までご連絡ください。
  • A. はい、可能です。賃貸希望物件リクエストをご利用ください。オーキッドレジデンス六本木(ZZ3667111_453)に似た物件も合わせてご紹介させていただきます。