前へ
次へ
前へ
次へ
マンション
即入居可

パークアクシス品川天王洲アイル(310)

21.4 万円
共益費 15,000
21.4万円
-
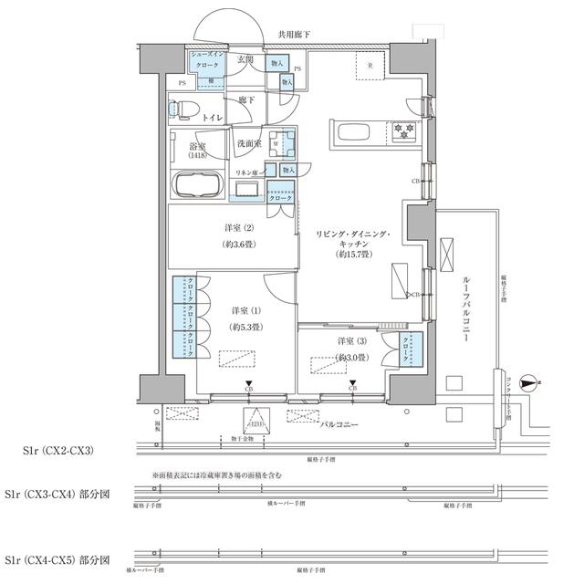
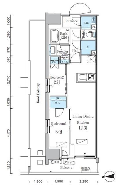
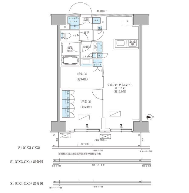
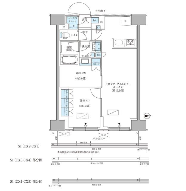
間取り
2DK
専有面積
45.57㎡
所在階
14階建ての3階
向き
  • アイコン: 住所 東京都品川区東品川3丁目
  • アイコン: 交通 東京臨海高速鉄道りんかい線 「天王洲アイル駅」 徒歩7分 / 東京モノレール羽田線 「天王洲アイル駅」 徒歩10分
簡単無料
アイコン: お電話 0037-6001-06881
IP電話ご利用のお客様 : 03-3381-7770
ピタットハウス
中野南口店
お気軽にお問い合わせください!
簡単無料
お気軽にお問い合わせください!
物件情報・周辺環境・契約手続きについてなどお気軽にお問い合わせください。

設備・条件

建物・立地
  • エレベータ
  • 宅配ボックス
  • 敷地内ごみ置き場
  • バイク置場
通信
  • CATV
  • BSアンテナ
  • CSアンテナ
セキュリティ
  • オートロック
部屋設備
  • フローリング
  • バルコニー
  • 室内洗濯機置場
  • ウォークインクロゼット
冷暖房
  • エアコン
キッチン
  • システムキッチン
  • グリル
バス・トイレ
  • バス・トイレ別
  • 浴室乾燥機
  • 追い焚き風呂
  • 独立洗面台
特徴
  • 新築
  • ペット相談可
  • ピアノ相談可
  • 事務所利用不可
  • フリーレント2ヶ月

物件概要

物件種別

部屋種別 マンション
建物名称 パークアクシス品川天王洲アイル(310)
所在地 東京都品川区東品川3丁目 MAP
築年月 2025年3月 階数 14階建ての3階
建物構造 鉄筋コンクリート造 総戸数 -
間取り 2DK 専有面積 45.57㎡
向き バルコニー面積 5.00㎡
その他 管理形態:日勤管理 

費用

賃料 21.4万円 初期費用の確認をする 初期費用の確認をする 共益費 15,000円
礼金 - 敷金 21.4万円
保証金 - 償却金 -
その他一時金 室内清掃費:85215円
その他月額費用 口座振替事務手数料:110円/月
住宅保険 要加入
保証会社 必須
保証会社補足 初回保証委託料(最低20,000円):月額賃料等の50%、 2年目以降:9,600円/年
更新料 - 更新事務手数料 -

契約条件

貸家契約区分 定期賃貸借 契約期間 2年
入居可能日 相談 空室状況を確認をする 空室状況を確認をする 引渡時期相談内容 -
フリーレント あり 2ヶ月
クレジットカード決済 -

駐車場

駐車場 なし 駐車場について質問する 駐車場について質問する
駐車場契約形態 -
駐車場備考 -
バイク置き場 -
駐輪場 -

備考

その他
関連リンク
取引態様 媒介 管理コード 4540322
情報登録(更新)日 2026年1月11日 次回更新予定日 2026年1月18日
備考 めやす賃料:

めやす賃料とは賃料、共益費・管理費、敷引金、更新料を含み、賃料等条件の改定がないものと仮定して4年間賃借した場合(定期借家の場合は契約期間)の1ヶ月当たりの金額です。

※敷引金は、敷金の償却、保証金の償却など、預かった金額から必ず引くものをいいます。
※めやす賃料は、消費者に適切な情報を提供するための表示であり事業者に一時金を推奨するものではありません。
※めやす賃料は、実際の総支払額と異なる場合があります。詳しくは不動産会社にご確認ください。  

パークアクシス品川天王洲アイル の他の空室物件

68
建物の空室物件一覧 次へ

取扱店舗

ピタットハウス中野南口店
ピタットハウス中野南口店
株式会社松崎ハウジング
交通
JR中央線・東京メトロ東西線中野駅南口より徒歩1分
営業時間
10:00 〜 18:00
定休日
毎週水曜日
お電話 0037-6001-06881 無料
メール お問い合わせ
  • お問い合わせ区分

  • 内見希望日時

    第一希望

    第二希望

  • お名前

    全角
  • ご希望の連絡方法

    メールアドレス

    電話番号

    半角
    半角
  • その他ご希望等

ピタットハウスの個人情報の取り扱いについて

ピタットハウスでは信頼されるサイトを目指して、物件情報の精度向上に努めています。
掲載物件に誤りがある場合は こちら からご連絡ください。現状と異なる場合は、現状を優先させていただきます。
取引態様の欄に「媒介」と表示された物件は「仲介物件」です。ご成約の際には仲介手数料を申し受けます。

その他の取扱店舗

不動産会社毎に募集条件等が異なる場合があります。詳細は各店の物件詳細ページにてご確認ください。
交通
京急本線「井土ヶ谷」駅から南に徒歩約3分。駐車場もありますのでお車でも大丈夫です。
営業時間
10:00 〜 19:00
定休日
毎週水曜日・※年末年始休暇※12月28日~1月4日
  • 駐車場あり/キッズスペースあり/中国語対応可
お電話 0037-6001-03993 無料
交通
東急多摩川線 鵜の木駅より徒歩1分
営業時間
10:00 〜 18:30
定休日
毎週水曜日・第1第3火曜日・冬期休業:R7年12月27〜R8年1月5
  • 近隣駐車場あり
お電話 0037-6001-04596 無料
交通
JR中央線「阿佐ヶ谷駅」南口徒歩1分ロータリーに面した駅直結の店舗です。
営業時間
10:00 〜 19:00
定休日
毎週火・水曜日・1月から3月は毎日営業・冬期休業12/28から1/4まで
  • キッズスペースあり
お電話 0037-6001-07674 無料
交通
JR中央線 『武蔵境駅』 南口より 徒歩30秒 駐車場有 
営業時間
10:00 〜 19:00
定休日
毎週水曜日・冬期休業・12/28から1/4まで
  • 近隣駐車場あり/キッズスペースあり
お電話 0037-6001-08163 無料
交通
JR総武線 亀戸駅
営業時間
10:00 〜 18:00
定休日
毎週水曜日、木曜日・GW休業・夏季休業・年末年始休業・GW休業:5/3(日)〜5/7(木)
お電話 0037-6001-02650 無料
交通
東横線「都立大学駅」の改札を出て左へ。1Fにラーメン屋さんがあるビルの3Fです。
営業時間
10:00 〜 18:30
定休日
毎週火曜日・水曜日
  • 近隣駐車場あり
お電話 0037-6001-02068 無料
交通
JR京浜東北線 東急大井町線 りんかい線 大井町駅東口 徒歩1分
営業時間
10:00 〜 19:00
定休日
毎週水曜日・年末年始休業
  • キッズスペースあり
お電話 0037-6001-05465 無料
交通
JR山手線「新宿」駅徒歩6分都営大江戸線「新宿西口」駅徒歩2分
営業時間
09:30 〜 18:30
定休日
毎週水曜日・2月・3月は無休、夏季休暇無し
お電話 0037-6001-05237 無料

生活情報

品川区の暮らしデータ

品川区は、東京都の南東部に位置し、東京湾に面する臨海部と山の手に連なる台地から形成され、面積は22.85km2で23区では平均的な広さです。人口は約40万人余りで、1964年をピークに減少していましたが、1998年以降は増加に転じています。

基本データ

市区役所所在地 品川区広町2-1-36
公式ホームページURL https://www.city.shinagawa.tokyo.jp/
総人口 422,488人
人口増減率(2015年/2020年) 109.2%
品川区の生活情報を詳しくみる

地域のおすすめ情報ブログ

一覧を見る

天王洲アイル駅近隣の駅から探す

品川区の近隣エリアから探す

FAQ

  • A. パークアクシス品川天王洲アイル(ZZ4540322_1165)の内見は、見学予約でお問い合わせいただくか、直接中野南口店(0037-6001-06881)までご連絡ください。
  • A. 可能です。パークアクシス品川天王洲アイル(ZZ4540322_1165)周辺の情報は、ピタットハウスの地域情報ブログ「街ピタ」住みたい街の暮らしデータをご活用ください。
  • A. パークアクシス品川天王洲アイル(ZZ4540322_1165)の費用は、こちらよりお問い合わせいただくか、直接中野南口店(0037-6001-06881)までご連絡ください。
  • A. はい、可能です。賃貸希望物件リクエストをご利用ください。パークアクシス品川天王洲アイル(ZZ4540322_1165)に似た物件も合わせてご紹介させていただきます。